
+39 328 2940727
Informativa Privacy
Informativa Cookie
Rif. 564 – Quadrilocale con garage in Via di Padule n.16, Pisa
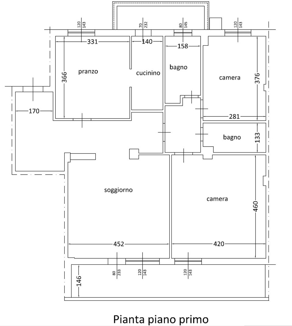
Proponiamo in vendita un appartamento quadrilocale di 111 mq catastali (106 mq escluse aree scoperte), sito al primo piano di un palazzo servito da ascensore e costruito nel 1981. L’edificio, ben tenuto e collocato in una zona residenziale tranquilla, gode della vicinanza a tutti i principali servizi: scuole, supermercati, fermata dell’autobus, ospedale, farmacia e comodo accesso alle principali vie di comunicazione. Ampia disponibilità di parcheggio nelle immediate vicinanze.
L’abitazione si apre su un ingresso ampio e tradizionale, con armadio a muro, che conduce al soggiorno con balcone. La zona giorno prosegue con la sala da pranzo, un pratico cucinotto e un secondo balcone.
La zona notte, ben separata da un disimpegno, è composta da:
A completare la proprietà, un garage di 9 mq catastali al piano seminterrato del fabbricato.
N.B.: Possibilità di ricavare la terza camera.
L’unità immobiliare, così come il condominio, si presenta in buono stato di manutenzione.
Dettagli principali:
Per ulteriori informazioni e per fissare un appuntamento di visita, contattare direttamente gli agenti incaricati alla vendita.
Prezzo: € 225.000
Classe energetica: G
Spese condominiali: € 280/mese (riscaldamento e acqua calda inclusi) N.B. L'importo delle spese condominiali è stato condizionato dalla cattiva gestione del precedente inquilino, maggiori informazioni in agenzia
Superficie catastale garage: 9 mq
Superficie catastale appartamento: 111 mq (106 mq escluse aree scoperte)
ampia camera matrimoniale.
secondo bagno,
cameretta,
bagno principale con doccia e finestra,


+39 328 2940727
Informativa Privacy
Informativa Cookie